
- BUYING AND
SELLING
売買物件
-
新築住宅情報登録日:2026/03/07
情報更新日:2026/03/07
昭島市玉川町3丁目








物件概要
| 所在地 | 昭島市玉川町3丁目 |
|---|---|
| 交通 | JR青梅線『東中神駅』 徒歩6分 |
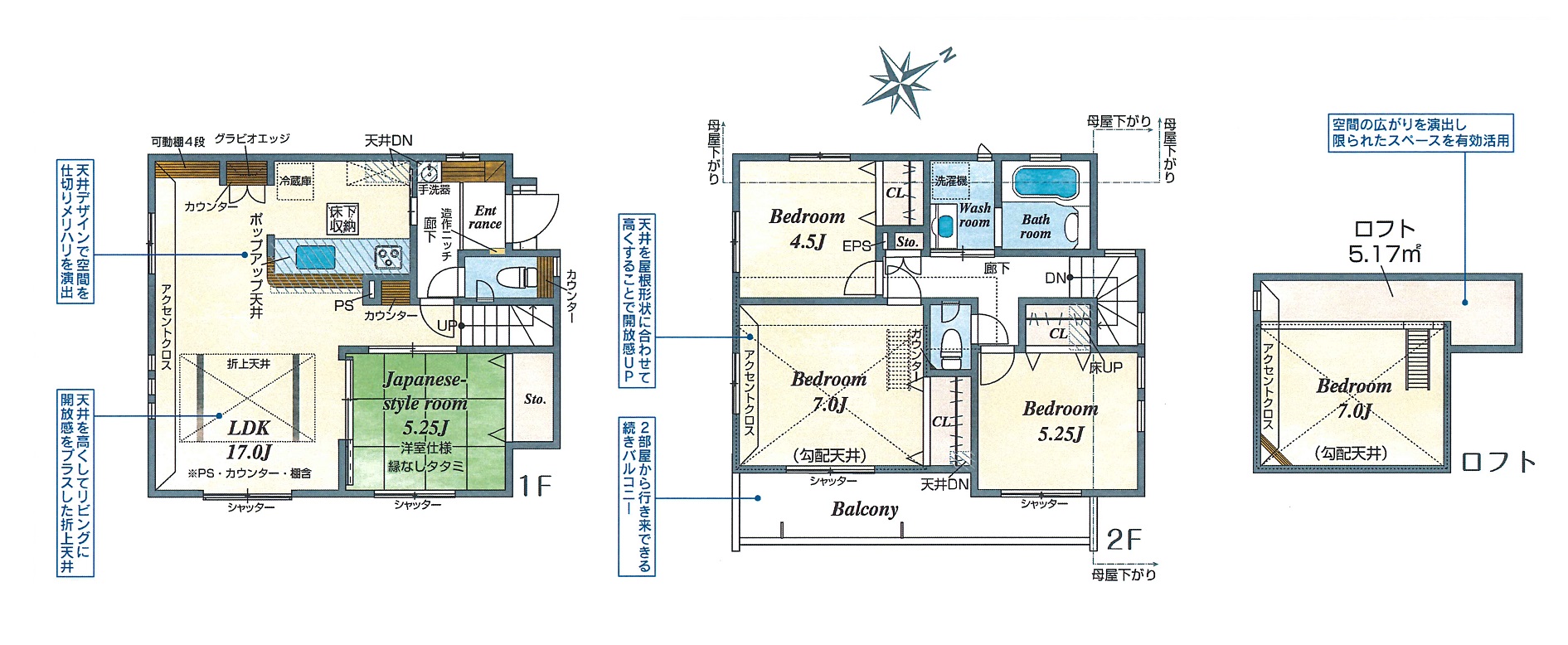
| 建物面積 | 92.32m2 |
| 土地面積 | 92.09m2 |
| 築年数 | 2026年6月中旬完成予定 |
| 構造 | 木造2階建 |
| 現況 | 建築中 |
| 引渡時期 | 2026年7月下旬以降 |
| 総棟数 | 1棟 |
| 販売棟数 | 1棟 |
| 用途地域 | 第一種中高層住居専用地域/近隣商業地域 |
| 地目 | 宅地 |
| 建ぺい率 | 60%・80% |
| 容積率 | 200% |
| 接道状況 | 北側約2.9m市道+私道 |
| 販売価格 | 4,980万円(税込) |
| 敷地権利 | 所有権 |
| 取引態様 | 仲介 |
| 特記事項 | 建築確認番号:第R08SHC101963号 |
| お問い合わせ | |
| コメント | 通勤・通学に便利な駅から徒歩6分。収納に便利なロフトつきです。 |
| 物件番号 | 2711 |
※情報と現況が異なる場合は現況を優先とします。
※契約済みの場合や、条件変更が反映されていない場合等があります。最新の情報に関しましてはお問い合わせの上、ご確認下さい。
※契約済みの場合や、条件変更が反映されていない場合等があります。最新の情報に関しましてはお問い合わせの上、ご確認下さい。