
- BUYING AND
SELLING
売買物件
-
新築住宅情報登録日:2026/01/17
情報更新日:2026/04/12
昭島福島町2期









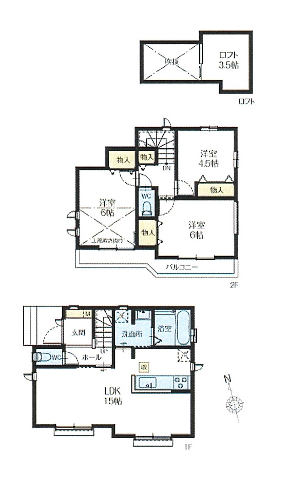
物件概要
| 所在地 | 昭島市福島町2丁目 |
|---|---|
| 交通 | JR青梅線『東中神駅』 徒歩11分 |
| 建物面積 | 74.52m2~75.59m2 |
| 土地面積 | 96.03m2~97.82m2 |
| 築年数 | 2025年12月下旬完成予定 |
| 構造 | 木造サイディング貼アスファルトシングル葺2階建 |
| 現況 | |
| 引渡時期 | 相談 |
| 総棟数 | 3棟 |
| 販売棟数 | 3棟 |
| 用途地域 | 第一種低層住居専用地域 |
| 地目 | 宅地 |
| 建ぺい率 | 40% |
| 容積率 | 80% |
| 接道状況 | 西側約4.0m~5.06m公道 |
| 販売価格 | 4,090万円~4,250万円(税込) |
| 敷地権利 | 所有権 |
| 取引態様 | 仲介 |
| 特記事項 | 建築確認番号:第HPA-25-09288-1号他 |
| お問い合わせ | |
| コメント | 収納に便利なロフト付きです。視界の広い対面キッチン仕様。 |
| 物件番号 | 2508 |
棟・区画情報
| 棟・区画名 | 土地面積 | 建物面積 | 販売価格 |
|---|---|---|---|
| A号棟 3LDK | 96.13m2 | 74.52m2 | 4,190万円(税込) |
| B号棟 3LDK | 96.03m2 | 74.52m2 | 4,090万円(税込) |
| C号棟 3LDK | 97.82m2 | 75.59m2 | 4,250万円(税込) |
※情報と現況が異なる場合は現況を優先とします。
※契約済みの場合や、条件変更が反映されていない場合等があります。最新の情報に関しましてはお問い合わせの上、ご確認下さい。
※契約済みの場合や、条件変更が反映されていない場合等があります。最新の情報に関しましてはお問い合わせの上、ご確認下さい。